Tòa Aqua 1 Vinhomes Golden River

Aqua 1 Vinhomes Golden River nằm tại vị trí tiếp giáp kênh Thị Nghè và sông Sài Gòn, tòa Aqua 1 được đánh giá là một trong những tòa cao tầng đắt giá nhất Vinhomes Golden River. Tòa Aqua 1 được quy hoạch đầy đủ các loại hình: căn hộ cao cấp từ 1 – 4 phòng ngủ, căn hộ Officetel và Penthouse, đáp ứng đa dạng nhu cầu sống và hưởng thụ của cư dân.

Mặt bằng dự án Vinhomes Golden River tại Bason, Bến Nghé, Quận 1.

Mặt bằng dự án Vinhomes Golden River tại Bason, Bến Nghé, Quận 1.

TỔNG QUAN TÒA AQUA 1

Với vị trí tiếp giáp kênh Thị Nghè và sông Sài Gòn thơ mộng, Aqua 1 Vinhomes Golden River được xem là một trong những tòa cao tầng đắt giá nhất của dự án. Tất cả các căn hộ tại đây đều sở hữu không khí trong lành, yên tĩnh và tràn đầy sức sống.

Tòa: Aqua 1 Vinhomes Golden River.
Số tầng: 50 tầng.
Loại hình: Căn hộ cao cấp 1- 4 phòng ngủ, căn hộ Officetel, Penthouse (biệt thự trên không).
Số căn/sàn: 16 căn.
Thang máy: 12 thang.
Thang bộ: 2 thang.
Tầng hầm: 3 tầng.

MẶT BẰNG AQUA 1 VINHOMES GOLDEN RIVER

Aqua 1 là một tòa cao tầng sang trọng nằm ở vị trí đắt giá được gọi là “kim cương quý giá” tại thành phố Hồ Chí Minh. Tòa nhà có không gian sinh thái trong lành và yên tĩnh, cùng với chuỗi tiện ích đẳng cấp khép kín, mang đến trải nghiệm sống hiện đại và tiện nghi cho cộng đồng cư dân thịnh vượng.

Các đơn vị kiến trúc hàng đầu thế giới như EDSA, Gensler (Hoa Kỳ) đã tư vấn và thiết kế cho Aqua 1. Mỗi căn hộ đều có tầm view đẹp, bao quát toàn cảnh chuỗi cảnh quan tiện ích nội khu, bến du thuyền Ba Son đẳng cấp và nhịp sống sầm uất, hiện đại của thành phố Hồ Chí Minh – thành phố phát triển nhất Việt Nam.

LAYOUT ĐIỂN HÌNH TẦNG 2 ĐẾN 22

Layout điển hình Tòa Aqua 1 Vinhomes Golden River từ Tầng 2 đến Tầng 22.

Layout điển hình Tòa Aqua 1 Vinhomes Golden River từ Tầng 2 đến Tầng 22.

Layout thiết kế điển hình Tầng 2 đến Tầng 22 Tòa Aqua 1 loại Officetel 01, Officetel 02, Officetel 03, căn hộ 04.

Layout thiết kế điển hình Tầng 2 đến Tầng 22 Tòa Aqua 1 loại Officetel 01, Officetel 02, Officetel 03, căn hộ 04.

Layout thiết kế điển hình Tầng 2 đến Tầng 22 Tòa Aqua 1 loại căn hộ 05, Officetel 06, Officetel 07, Officetel 08.

Layout thiết kế điển hình Tầng 2 đến Tầng 22 Tòa Aqua 1 loại căn hộ 05, Officetel 06, Officetel 07, Officetel 08.

Layout thiết kế điển hình Tầng 2 đến Tầng 22 Tòa Aqua 1 loại Căn hộ Officetel 09, căn hộ 10, căn hộ Officetel 11, căn hộ 12.

Layout thiết kế điển hình Tầng 2 đến Tầng 22 Tòa Aqua 1 loại Căn hộ Officetel 09, căn hộ 10, căn hộ Officetel 11, căn hộ 12.

Layout thiết kế điển hình Tầng 2 đến Tầng 22 Tòa Aqua 1 loại căn hộ 12A, Officetel 12B, căn hộ 15, Officetel 16.

Layout thiết kế điển hình Tầng 2 đến Tầng 22 Tòa Aqua 1 loại căn hộ 12A, Officetel 12B, căn hộ 15, Officetel 16.

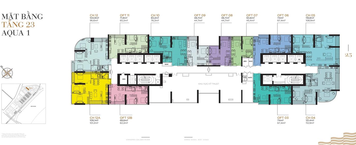
LAYOUT ĐIỂN HÌNH TẦNG 23

Layout điển hình Tầng 23, Tòa Aqua 1 Vinhomes Golden River.

Layout điển hình Tầng 23, Tòa Aqua 1 Vinhomes Golden River.

Layout thiết kế điển hình Tầng 23 Tòa Aqua 1 loại Officetel 03, Căn hộ 04, Căn hộ 05, Officetel 06.

Layout thiết kế điển hình Tầng 23 Tòa Aqua 1 loại Officetel 03, Căn hộ 04, Căn hộ 05, Officetel 06.

Layout thiết kế điển hình Tầng 23 Tòa Aqua 1 loại Officetel 07, Officetel 08, Officetel 09, Căn hộ 10.

Layout thiết kế điển hình Tầng 23 Tòa Aqua 1 loại Officetel 07, Officetel 08, Officetel 09, Căn hộ 10.

Layout thiết kế điển hình Tầng 23 Tòa Aqua 1 loại Officetel 11, Căn hộ 12, Căn hộ 12A, Officetel 12B.

Layout thiết kế điển hình Tầng 23 Tòa Aqua 1 loại Officetel 11, Căn hộ 12, Căn hộ 12A, Officetel 12B.

LAYOUT ĐIỂN HÌNH TẦNG 24 ĐẾN 41

Layout điển hình Tầng 24 đến Tầng 41, Tòa Aqua 1 Vinhomes Golden River.

Layout điển hình Tầng 24 đến Tầng 41, Tòa Aqua 1 Vinhomes Golden River.

Layout thiết kế điển hình Tầng 24 đến Tầng 41 Tòa Aqua 1 loại Officetel 01, Officetel 02, Officetel 03, Căn hộ 04.

Layout thiết kế điển hình Tầng 24 đến Tầng 41 Tòa Aqua 1 loại Officetel 01, Officetel 02, Officetel 03, Căn hộ 04.

Layout thiết kế điển hình Tầng 24 đến Tầng 41 Tòa Aqua 1 loại Căn hộ 05, Officetel 06, Officetel 07, Officetel 08.

Layout thiết kế điển hình Tầng 24 đến Tầng 41 Tòa Aqua 1 loại Căn hộ 05, Officetel 06, Officetel 07, Officetel 08.

Layout thiết kế điển hình Tầng 24 đến Tầng 41 Tòa Aqua 1 loại Officetel 09, Căn hộ 10, Officetel 11, Căn hộ 12.

Layout thiết kế điển hình Tầng 24 đến Tầng 41 Tòa Aqua 1 loại Officetel 09, Căn hộ 10, Officetel 11, Căn hộ 12.

Layout thiết kế điển hình Tầng 24 đến Tầng 41 Tòa Aqua 1 loại Căn hộ 12A, Officetel 12B, Căn hộ 15, Officetel 16.

Layout thiết kế điển hình Tầng 24 đến Tầng 41 Tòa Aqua 1 loại Căn hộ 12A, Officetel 12B, Căn hộ 15, Officetel 16.

LAYOUT ĐIỂN HÌNH TẦNG 42 ĐẾN 47

Layout điển hình Tầng 42 đến Tầng 47, Tòa Aqua 1 Vinhomes Golden River.

Layout điển hình Tầng 42 đến Tầng 47, Tòa Aqua 1 Vinhomes Golden River.

Layout thiết kế điển hình Tầng 42 đến Tầng 47 Tòa Aqua 1 loại Officetel 01, Căn hộ 02A, Căn hộ 03A, Căn hộ 04A.

Layout thiết kế điển hình Tầng 42 đến Tầng 47 Tòa Aqua 1 loại Officetel 01, Căn hộ 02A, Căn hộ 03A, Căn hộ 04A.

Layout thiết kế điển hình Tầng 42 đến Tầng 47 Tòa Aqua 1 loại Căn hộ 05A, Officetel 08, Officetel 09, Căn hộ 10.

Layout thiết kế điển hình Tầng 42 đến Tầng 47 Tòa Aqua 1 loại Căn hộ 05A, Officetel 08, Officetel 09, Căn hộ 10.

Layout thiết kế điển hình Tầng 42 đến Tầng 47 Tòa Aqua 1 loại Officetel 11, Căn hộ 12, Căn hộ 12A, Officetel 12B.

Layout thiết kế điển hình Tầng 42 đến Tầng 47 Tòa Aqua 1 loại Officetel 11, Căn hộ 12, Căn hộ 12A, Officetel 12B.

Layout thiết kế điển hình Tầng 42 đến Tầng 47 Tòa Aqua 1 loại Căn hộ 15, Officetel 16.

Layout thiết kế điển hình Tầng 42 đến Tầng 47 Tòa Aqua 1 loại Căn hộ 15, Officetel 16.